立即預約 立即預約
免費定制整裝家居

免費定制整裝家居

一站置家 全程無憂 一省到底
hide.png

當前位置: 首頁 > 裝修案例效果圖 > 高新君園|新中式

高新君園|新中式 147平 中式風格效果圖

收藏
案例風格 中式 案例戶型 一居 案例面積 147平米
樓盤名稱 高新君園 設計師 王杰 案例類型 改善性住宅

設計理念:房子為客戶自住、改善性住房,業(yè)主追求干凈、傳統(tǒng)、古樸的生活環(huán)境,同時對格局有很大期望,所以,本案已實用及合理性做布局,定義為新中式風格。

客廳
第1張
第2張
餐廳
第1張
臥室
第1張
第2張
衛(wèi)生間
第1張
第2張
廚房
第1張
書房
第1張
第2張
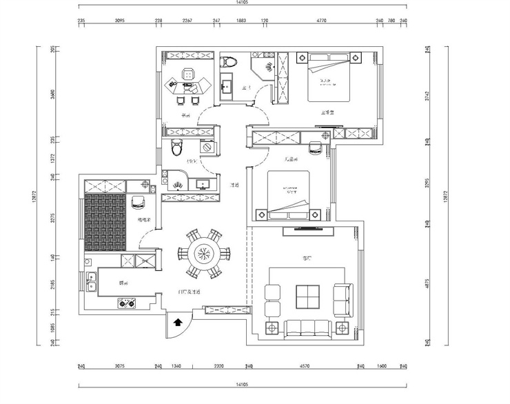
戶型圖
第1張
高新君園-147平米-新中式風格-客廳.jpg 高新君園-147平米-新中式風格-首圖.jpg

客廳說明: 用白色調和房間的基調,一種高級感在空間展開。

高新君園-147平米-新中式風格-餐廳.jpg 高新君園-147平米-新中式風格-主臥.jpg 高新君園-147平米-新中式風格-主臥1.jpg

臥室說明: 臥室區(qū)域是主要休息放松的地方。主臥延續(xù)了整個戶型干凈簡約的調性。

高新君園-147平米-新中式風格-衛(wèi)生間.jpg 高新君園-147平米-新中式風格-衛(wèi)生間1.jpg

衛(wèi)生間說明:已灰色亮光瓷磚為主,體現大氣、簡潔又不失檔次。

高新君園-147平米-新中式風格-廚房.jpg

廚房說明:采用中式廚房封閉設計,實現獨立操作的同時,增加了整體儲藏及空間實用性。

高新君園-147平米-新中式風格-書房.jpg 高新君園-147平米-新中式風格-書房2.jpg 布局圖.jpg

案例設計師

王杰

設計師:王杰

從業(yè)時間:7年

設計理念:因生活而設計,因設計而完美。

預約設計師

算算你家裝修多少錢

報名即享豐厚贈品,享半價裝修

免費報價
咨詢熱線:400-656-9909
20190221103704574636.jpg

精品設計案例

20180612134930523248.jpg 服務號二維碼.jpg